Zadávací dokumentace

Zadávací řízení: Kamarád Rožnov - pořízení nové zdvihací plošiny - II

Informace o dokumentu

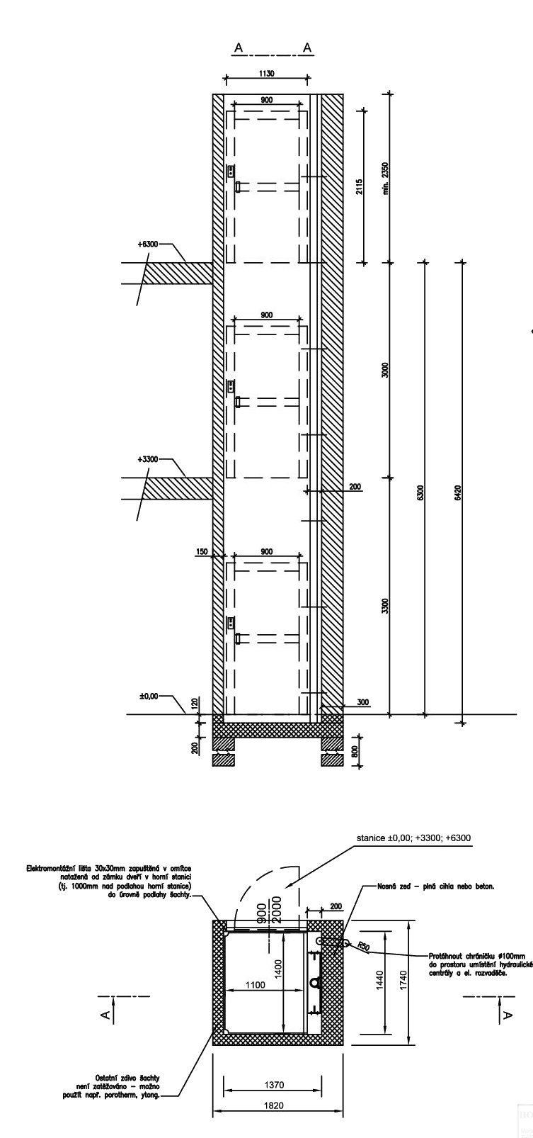
Název: Příloha Specifikace - výkres A
Popis:

Aktuální verze souboru

Jméno souboru: Obrázek JPEG Příloha Specifikace - výkres A.jpg
Velikost: 204,09 KiB
Aktuální verze souboru: 12.08.2025 11:53:58
Otisk MD5: b379ad12880f8b16edf1bd672a5ba88f
Otisk SHA256: 58aeee38895b21eb717e7190ce639d2eb84f4d2e0d9c63b9b0876a98c30e033a

Historie souboru

Datum Název Popis Typ dokumentu Jméno souboru Velikost
V 12.08.2025 11:53:58 Příloha Specifikace - výkres A zadávací dokumentace - Příloha Specifikace - výkres A.jpg 204,09 KiB