Veřejná zakázka: Kamarád Rožnov - pořízení nové zdvihací plošiny - II

Informace o veřejné zakázce

fáze zadávacího řízení Hodnocení
Probíhá vyhodnocování.
DBID: 2313
Systémové číslo: P25V00000119
Evidenční číslo ve VVZ: Z2025-044895
Datum zahájení: 13.08.2025
Nabídku podat do: 25.08.2025 10:00

Název, druh veřejné zakázky a popis předmětu

  • Název: Kamarád Rožnov - pořízení nové zdvihací plošiny - II
  • Druh veřejné zakázky: Dodávky

Stručný popis předmětu:
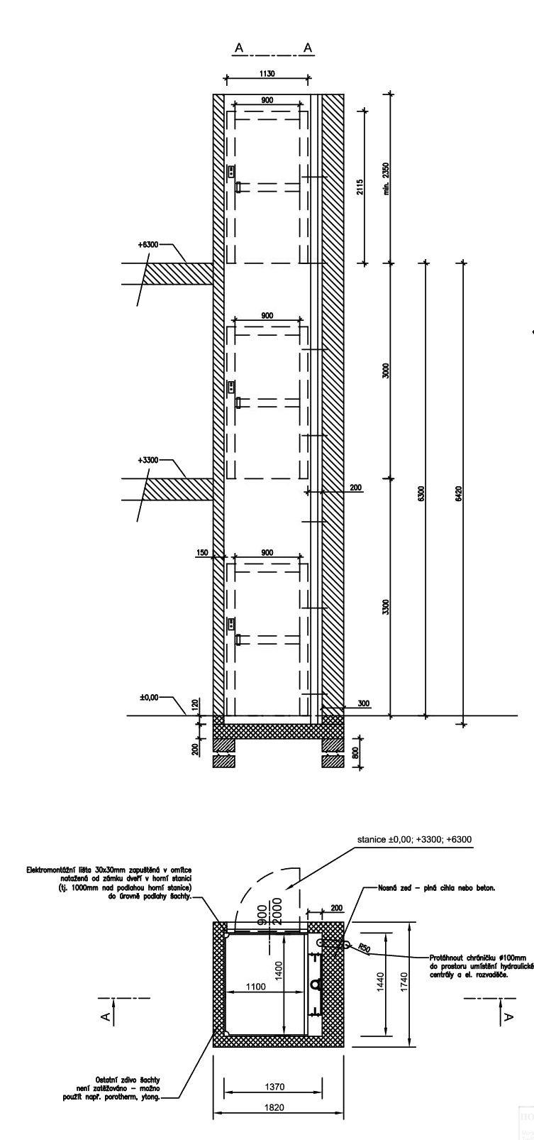
Předmětem plnění je pořízení nové svislé zdvihací plošiny do stávající výtahové šachty pro zařízení sociálních služeb sociálně terapeutických dílen pro osoby s převážně mentálním postižením v souvislosti s realizací akce „Kamarád Rožnov - pořízení nové zdvihací plošiny“.

Postup zadání, předpokládaná hodnota

  • Postup: VZMR - nepovinná výzva, uveřejňuje se
  • Režim veřejné zakázky: VZ malého rozsahu
  • Předpokládaná hodnota: 600 000 Kč bez DPH
  • Identifikátor dotačního projektu: Ministerstvo práce a sociálních věcí výzvy Národního plánu obnovy výzvy č. 17 Cíl 4 – Podpora mobility – program 013 310

Místo plnění

  • Zlínský kraj

Zadavatel

  • Úřední název: Kamarád Rožnov o.p.s.
  • IČO: 64123031
  • Poštovní adresa:
    Volkova 523
    75661 Rožnov pod Radhoštěm

Adresa kontaktního místa

Nabídky, resp. žádosti o účast podávat na:
Volkova 523
75661 Rožnov pod Radhoštěm

Kontakt

Položky předmětu (CPV)

Zadávací dokumentace

Veřejné dokumenty

Formuláře

URL odkazy